Pure Front Project
Home  /  Commercial  /  New Construction  /  Pure Front Project

Pure Front Project

Type: Commercial

Status: Design Proposal

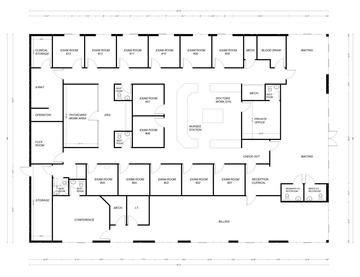
This project focuses on transforming a clinic space into a modern, functional environment that balances warmth with professionalism. The design celebrates simplicity and flow—enhancing both patient experience and operational efficiency.

Scope of Work

The project includes a revised floor plan, along with full 3D visualizations of both the exterior and interior. Every element was rethought to create a cohesive design language—from the structural layout to the materials and lighting palette.

Design Direction

Modern yet inviting, the design emphasizes clean lines, natural textures, and a calming neutral palette. The exterior was refreshed with contemporary detailing, while the interior was shaped to promote clarity, comfort, and a sense of openness throughout the space.

We will inform you when the product arrives in stock. Please leave your valid email address below.
Shopping cart0
There are no products in the cart!
0